NEUSTIFT | Kulturzentrum
TYP: (1Preis) Wettbewerb
Program: Kulturzentrum
Ort: Neustift, Österreich
Team: Stoque Fabien, Aleksey Moskvin und
Jonas Längenfelder für DinA4
Jahr: 2023
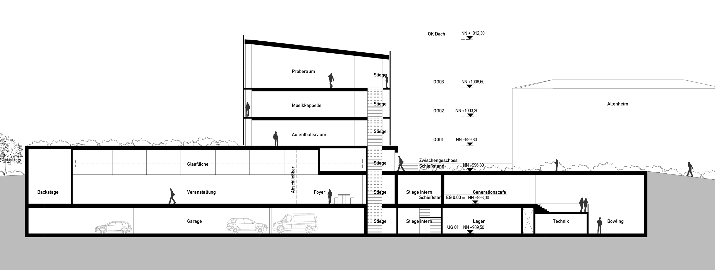
Das Bergcamp Stubai wird zum neuen Campus für Veranstaltungen und Erlebnis. Im Ort Neustift entsteht ein Zentrum das ganz im Zeichen des Kulturaustauschs, der Unterhaltung, der Begegnung mit der Natur und der Information steht. Um einen öffentlichen Raum zu generieren, der zu diesem lebendigen Austausch vor Ort führen soll, benötigt es eine gewisse Atmosphäre und ein besonderes Raumgefühl das Mensch einst dazu animiert sich zu diesem Ort hinzubegehen, aber sich auch dort frei bewegen zu wollen und zu erkunden..













